Te koop
vanaf €770,000































Woningen van hoge kwaliteit in een bevoorrechte omgevingOntdek deze 7 prachtige vrijstaande villa’s in Ciudad Quesada – Rojales, een van de meest gewilde gebieden van de Costa Blanca Zuid. Met een modern en elegant ontwerp zijn deze woningen ontworpen voor diegenen die op zoek zijn naar een luxe woning, hetzij als permanente verblijfplaats of als vakantiehuis.
Gelegen in een bevoorrechte natuurlijke omgeving, dicht bij de zoutmeren van La Mata en Torrevieja, genieten deze villa’s van een uniek microklimaat dat het hele jaar door een uitzonderlijke levenskwaliteit garandeert.
Verschillende modellen om uit te kiezenHet project biedt twee soorten villa’s, aangepast aan verschillende behoeften en levensstijlen:
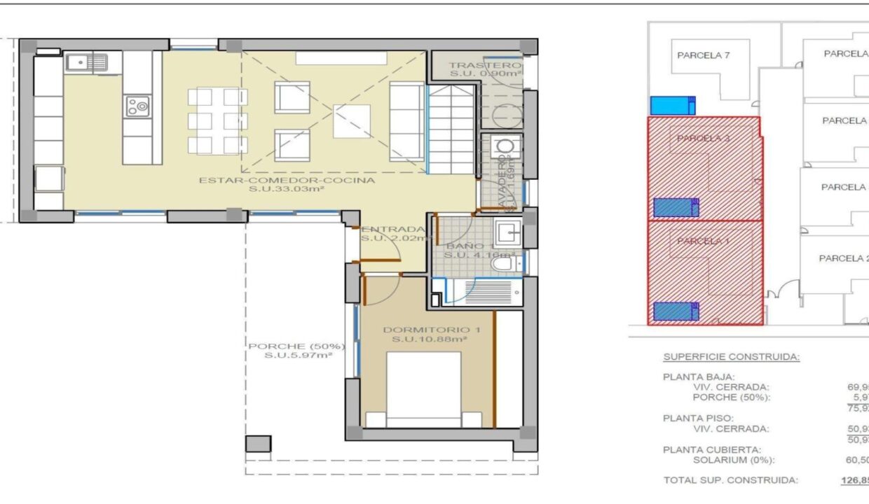
Villa’s met twee verdiepingen, 3 tweepersoonsslaapkamers en 3 complete badkamers.Villa’s met één verdieping, met 3 slaapkamers en 2 badkamers.
Alle woningen hebben:
Privé solarium op het dak, ideaal om te genieten van de zon en het panoramische uitzicht.Privézwembad en aangelegde tuin, perfect om te ontspannen en te entertainen.Prive parkeerplaats.Daarnaast is er een volledig uitgeruste modelwoning beschikbaar, waar je de kwaliteit van de materialen en luxe afwerking kunt bewonderen.
High End uitrusting en afwerkingDeze villa’s zijn ontworpen om maximaal comfort en energie-efficiëntie te garanderen:
Volledig ingerichte keuken met apparatuur inbegrepen.Pre-installatie van gekanaliseerde airconditioning.Grote open ruimtes en grote ramen, die zorgen voor een uitstekende natuurlijke lichtinval.Moderne afwerking en materialen van hoge kwaliteit.
Strategische ligging en nabijgelegen verbindingenCiudad Quesada is een geconsolideerde urbanisatie met alle voorzieningen die nodig zijn voor het dagelijks leven: supermarkten, restaurants, gezondheidscentra en recreatiegebieden. Bovendien biedt de locatie snelle toegang tot de belangrijkste bezienswaardigheden in de omgeving:
Stranden van Guardamar del Segura – 5 km.Dichtstbijzijnde supermarkt – 500 m.Ziekenhuis Torrevieja – 6 km.Luchthaven Alicante – 29 km.
Ontdek je nieuwe huis in Ciudad QuesadaAls je op zoek bent naar een moderne, ruime en goed gelegen villa, dan zijn deze woningen de ideale keuze. Mis deze kans niet en neem vandaag nog contact met ons op voor meer informatie of om een bezichtiging van de modelwoning te regelen.
San Miguel de Salinas – Alicante – Appartement