Te koop
vanaf €563,160






































Nieuwbouw moderne herenhuizen en halfvrijstaande villa’s met verschillende terrassen en solarium, volledig omheind, met parkeerplaats voor voertuigen en privézwembad in Polop.
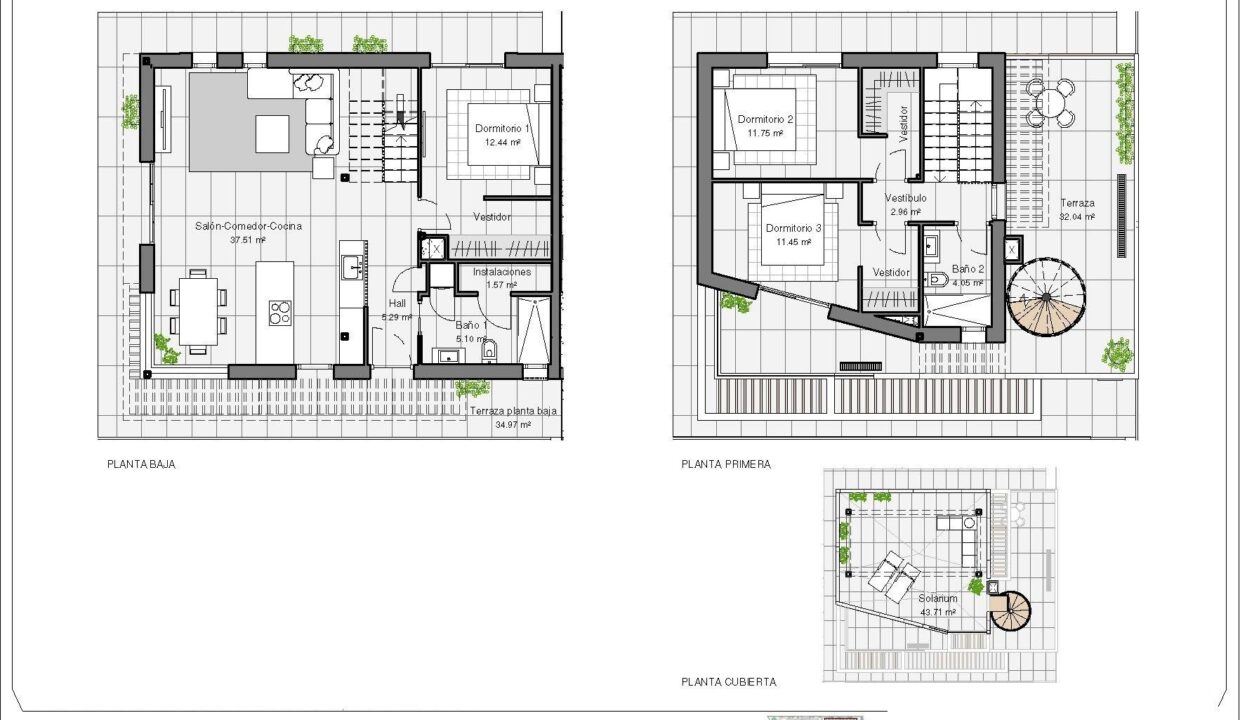
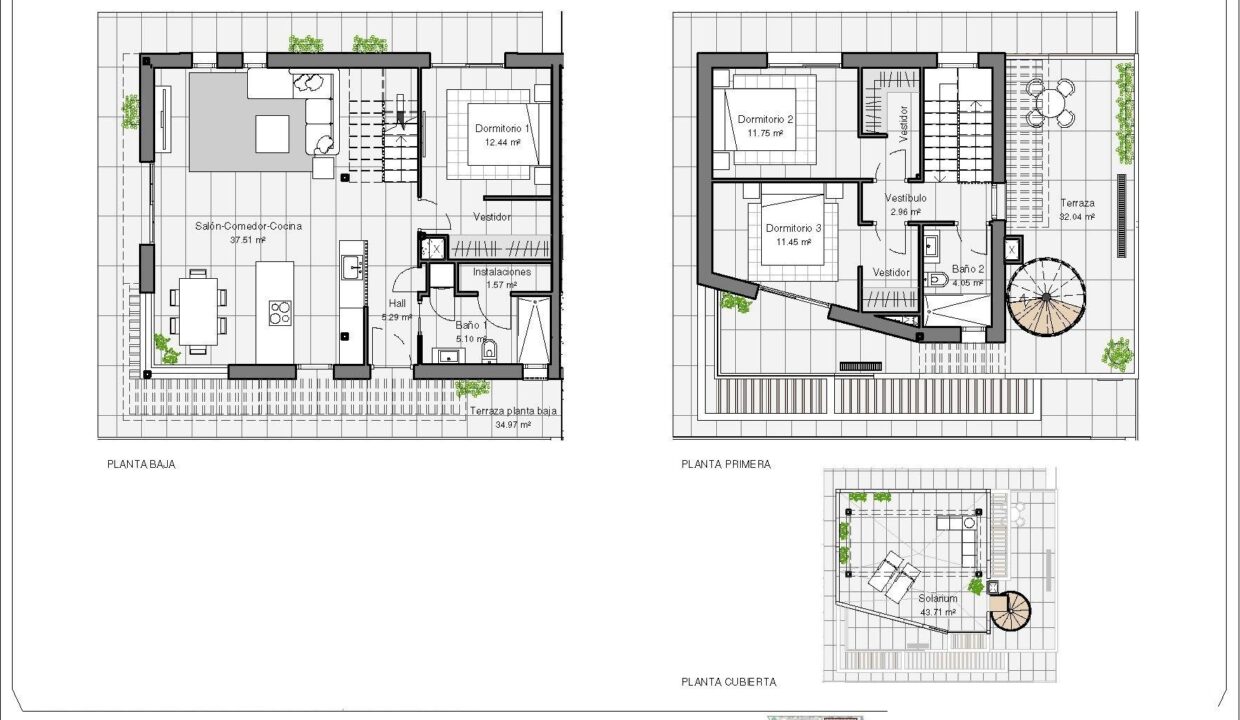
Moderne woningen met 3 ruime slaapkamers met ingebouwde kasten (de belangrijkste op de begane grond, met badkamer en kleedkamer en suite), 2 ruime badkamers, grote woon-eetkamer met open keuken, ruime terrassen.
Keuken uitgerust met onderkasten en silestone werkbladen, met keramische kookplaat, oven, afzuigkap, koelkast, wasmachine, vaatwasser en aerothermische kachel.
Eerste kwaliteiten: binnenschrijnwerk in hout en wit gelakt laminaat, buitenschrijnwerk in antracietgrijs pvc met dubbele beglazing en koudebrugonderbreking, en automatische rolluiken met aluminium lamellen, keramische vloeren van 1e kwaliteit antislip, gladde muren, veiligheidsdeur met 5 verankeringspunten, grote ingebouwde kasten.
De stad Polop biedt een verbazingwekkend scala aan mogelijkheden voor liefhebbers van het buitenleven, omringd door natuur en ongeëvenaarde rust.
De gemeente heeft een mediterraan klimaat met koelere temperaturen en schonere lucht en ligt op minder dan 10 kilometer van Benidorm, Altea en hun stranden.
Het strekt zich uit van de rivieren Guadalest en Algar tot de stad Villajoyosa, inclusief de stranden van Albir en Benidorm; in het binnenland grenst het aan Callosa en Guadalest.
Alhama de Murcia – Murcia – Appartement