Te koop
vanaf €700,000












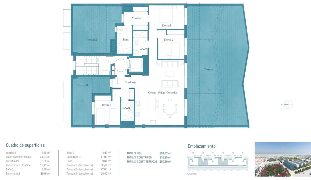
Rustig omheind wooncomplex bestaande uit appartementen met 1, 2 en 3 slaapkamers en penthouses met 3 slaapkamers. Alle woningen hebben een garage en berging. Airconditioning met warmtepomp. Vloerverwarming in badkamers met onafhankelijke controle. Met spectaculaire terrassen vanwaar je de omringende natuur kunt bewonderen.
Fantastische locatie, met het beste commerciële aanbod van de Costa del Sol op 5 minuten afstand, en op slechts 2 km van het strand. Snelle toegang tot de belangrijkste communicatiemiddelen: snelweg en treinstation (2 Km), en luchthaven (25 Km). U kunt genieten van een echte kwaliteit van leven, met een grote verscheidenheid aan golfbanen, 12 km kustlijn, zon, natuur en de gastronomie van het gebied, van de internationale restaurants tot de gezellige lokale keuken.
Mijas combineert perfect de traditie van haar geplaveide straten met witgekalkte huizen en patio’s met hun potten vol kleurrijke bloemen, met moderniteit en het beste vrijetijdsaanbod van de Costa del Sol. Het heeft een bevoorrechte ligging tussen de zee en de bergen, waardoor het een van de meest aantrekkelijke toeristische bestemmingen in de provincie is.
Marbella – Málaga – Appartement