Te koop
vanaf €1,550,000















NIEUWBOUW WOONCOMPLEX IN FUENGIROLA
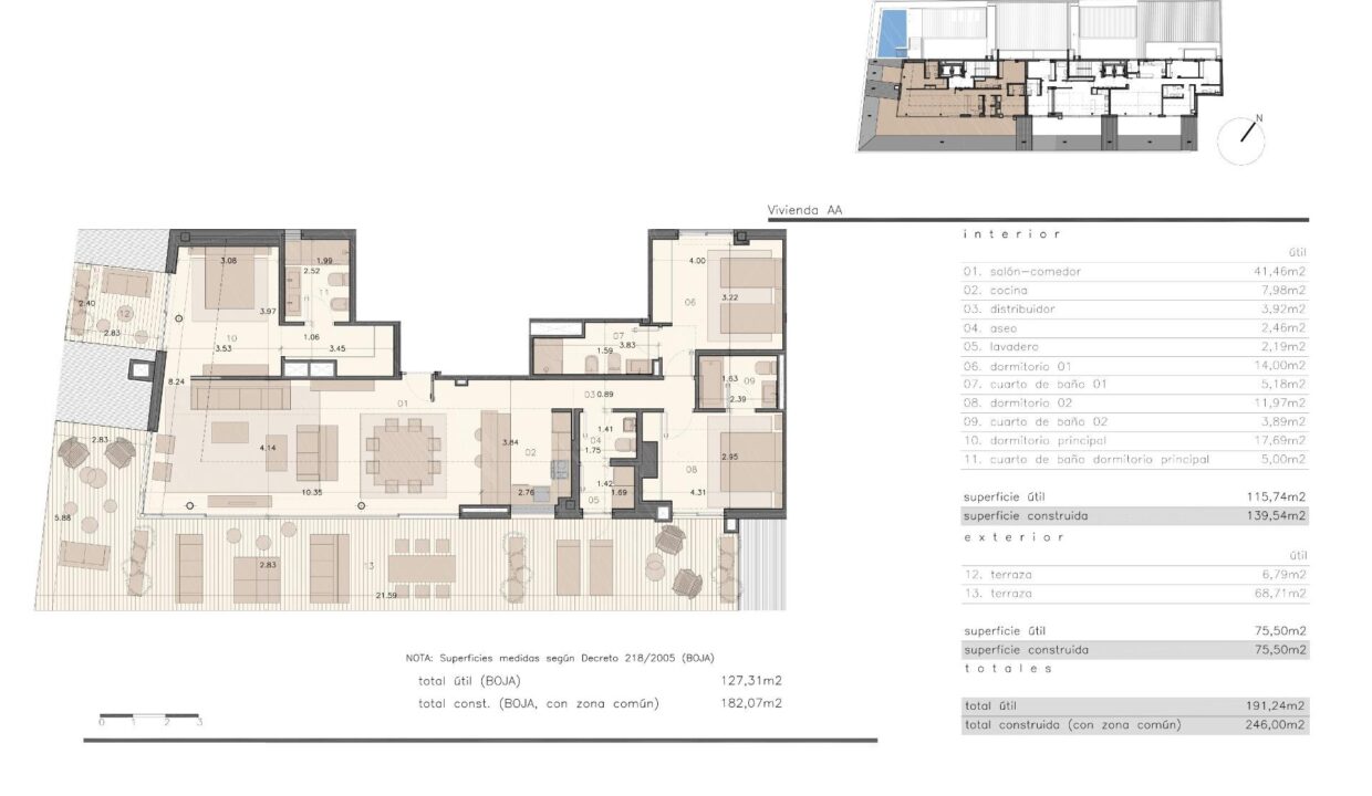
Nieuwbouw wooncomplex zal bestaan uit 33 luxe appartementen en penthouses met de meest moderne uitrusting en de beste kwaliteiten op de markt. Het project is een moderne constructie ontworpen door het prestigieuze architectenbureau A0- project met een eigen stijl die een exclusief concept van levenskwaliteit weerspiegelt: actueel, elegant, stijlvol en in lijn met de nieuwste technologie, die het wonen tot een genot voor de zintuigen maken.
Gelegen op slechts 350 meter van de zee.
De elegante stijl maakt dit gebouw tot een voorbeeld van moderne architectuur waarin alles is ontworpen met het comfort van de bewoners in het achterhoofd. Het werd gecreëerd met de roeping om een emblematische constructie van Fuengirola en de hele Costa del Sol te worden.
De tuinen, garages, zalen en doorgangen aan de buitenkant behouden de elegante en moderne stijl.
Wonen in dit complex betekent genieten van vrije tijd, cultuur, diensten, rust en de mediterrane levensstijl zonder iets op te hoeven geven.
Fuengirola, gelegen tussen Marbella en Malaga, is een van de meest levendige steden aan de Costa del Sol, een van de residentiële juweeltjes van het gebied en een stijgende waarde met een hoge levenskwaliteit.
Playa Paraiso – Tenerife – Appartement