Te koop
vanaf €556,225
















Moderne mediterrane woningen met uitzicht op zee en golfbaan in Estepona, Costa del Sol
Exclusief nieuwbouwproject op een toplocatieOntdek een uitzonderlijke kans om te wonen in het hart van de Costa del Sol, in een van de meest veelbelovende woonwijken van Estepona. Dit exclusieve nieuwe project bestaat uit 87 stijlvolle herenhuizen en halfvrijstaande villa’s, ideaal gelegen in het westen van Estepona, naast het nieuwe High-Resolution Hospital en aan de eerste lijn van Azata Golf, met Valle Romano Golf in de buurt. Deze levendige wijk is hard op weg om een van de meest prestigieuze en gewilde woonbestemmingen in de regio te worden.
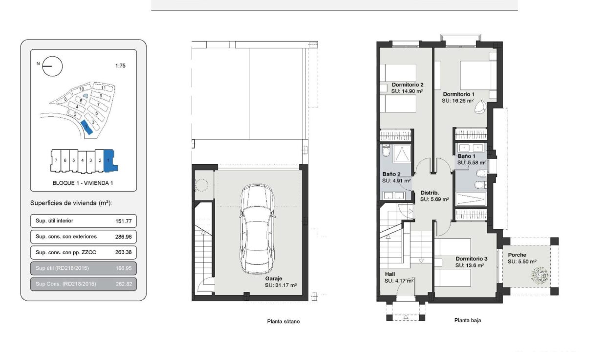
Ruime woningen ontworpen voor modern wonenDe woningen zijn verdeeld over twee hoofdverdiepingen plus een kelder en beschikken over drie slaapkamers, twee badkamers en een gastentoilet. Elke woning heeft een groot privéterras en sommige woningen hebben een dakterras met een prachtig uitzicht op de zee en de omliggende golfbanen.
De woningen zijn ontworpen in een moderne mediterrane stijl en beschikken over:Lichte en ruime interieursMarmeren vloerenDubbele beglazingElektrische zonweringWhirlpool-badkuipen voor maximaal comfort en ontspanning
Eersteklas gemeenschappelijke voorzieningenHet omheinde wooncomplex biedt hoogwaardige voorzieningen om uw levensstijl te verbeteren:Binnen- en buitenzwembadenSpa- en wellnessruimteVolledig uitgeruste fitnessruimteAangelegde tuinen die opnieuw zijn ontworpen om rust, harmonie en welzijn te bieden
Het hele project, zowel de binnen- als buitenruimtes, wordt volledig gerenoveerd om te voldoen aan hoge normen van elegantie, functionaliteit en kwaliteit.
Uitstekende verbindingen en natuurlijke omgevingHet complex is perfect gelegen op slechts 2 km van het strand en biedt gemakkelijke toegang tot belangrijke bestemmingen langs de Costa del Sol:
Centrum van Estepona – 5 kmMarbella – 30 kmSotogrande – 35 kmInternationale luchthaven van Malaga – 85 kmLuchthaven van Gibraltar – 45 kmAzata Golf Course – naast het complexValle Romano Golf – 1,5 kmHaven van Estepona – 6 km
Omgeven door natuur en dicht bij alle voorzieningen is dit een locatie die zowel rust als gemak biedt, waardoor het ideaal is voor gezinnen, gepensioneerden of investeerders die op zoek zijn naar een rendabele kans.
Wonen waar anderen op vakantie gaanOf u nu op zoek bent naar een vakantiehuis, een permanente woning of een slimme vastgoedinvestering, dit project in Estepona biedt het beste van het moderne leven aan de kust.
Neem vandaag nog contact met ons op om een bezoek te regelen en uw perfecte huis aan de Costa del Sol te vinden.
Mijas – Málaga – Ground floor apartment