Te koop
vanaf €2,850,000













Moderne villa met panoramisch uitzicht op zee in La Fustera, Benissa Costa
Deze exclusieve nieuwbouwwoning, ontworpen door een gerenommeerde architect en ontwikkeld door een lokale projectontwikkelaar met meer dan 20 jaar ervaring, ligt op een perceel van 800 m², op slechts een steenworp afstand van het strand van La Fustera.
De architectuur combineert mediterrane warmte met eigentijdse elegantie en maakt gebruik van natuursteen, hout en zachte neutrale tinten, waardoor het gebouw naadloos opgaat in het kustlandschap.
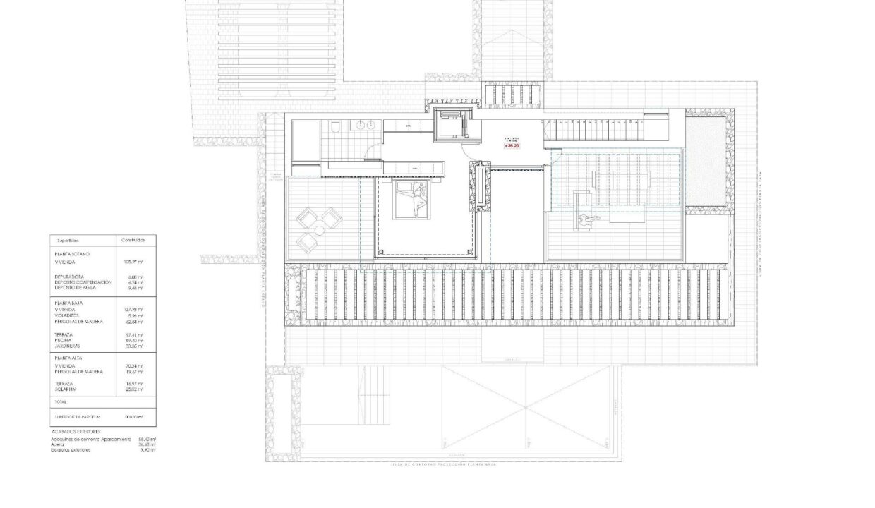
Met een totale bebouwde oppervlakte van 716 m², verdeeld over drie verdiepingen – kelder, begane grond en eerste verdieping – biedt de villa een perfecte balans tussen functionaliteit, design en comfort.
Kelder
De benedenverdieping van 105,97 m² is ontworpen met het oog op zowel functionaliteit als ontspanning. Het omvat een volledig uitgeruste fitnessruimte, wasruimte en technische ruimtes, met de mogelijkheid om extra ruimtes aan te passen als wijnkelder, bioscoop of multifunctionele ruimte. Op dit niveau bevinden zich ook het filtersysteem en de watertanks van het zwembad, waardoor een efficiënt beheer van alle technische installaties wordt gegarandeerd.
Begane grond
De hoofdverdieping, met een oppervlakte van 137,93 m², heeft een lichte, open indeling die de essentie van het mediterrane leven weerspiegelt. De ruime woonkamer, eetkamer en keuken komen via grote ramen van vloer tot plafond uit op het hoofdterras en het overloopzwembad, met een prachtig panoramisch uitzicht op zee dat het karakter van deze woning bepaalt.
Twee tweepersoonsslaapkamers, een complete badkamer en een gastentoilet maken deze verdieping compleet en bieden comfort en functionaliteit. Buiten zorgt een houten pergola voor schaduw in de buitenlounge en eetgedeeltes, omgeven door weelderige tuinen, zonneterrassen en een 59,40 m² groot overloopzwembad dat visueel versmelt met de zee.
Eerste verdieping
De bovenverdieping, met een oppervlakte van 70,19 m², is gereserveerd voor de master suite – een privéretraite met een inloopkast, een en-suite badkamer en een groot privéterras met adembenemend uitzicht op de Middellandse Zee. Een tweede slaapkamer of kantoorruimte maakt deze verdieping compleet, die ook toegang biedt tot een solarium van 25,02 m², ideaal om te ontspannen in de zon en te genieten van de rust van de omgeving.
Buitenkant en locatie
Deze woning ligt in een rustige woonstraat, omringd door moderne villa’s, en geniet van een uitzonderlijke ligging op slechts 3 minuten lopen van het strand van La Fustera (150 m), de Mandala Beach Bar & Restaurant en essentiële voorzieningen zoals supermarkten en lokale diensten.
Deze villa is ontworpen met de nadruk op licht, ruimte en een naadloze overgang tussen binnen en buiten, en belichaamt de moderne mediterrane levensstijl: elegant, ontspannen en in perfecte harmonie met het spectaculaire panoramische uitzicht op zee.
Verzeker uzelf van uw droomvilla in La Fustera, Benissa Costa, en omarm de ultieme mediterrane levensstijl met adembenemend uitzicht op zee en ongeëvenaard comfort.
Benissa – Alicante – Villa